Traditional Log Homes Cabin Plans
The Crystal Log Home
The Crystal log home: featuring a rustic exterior with large windows, and a spacious deck and porch. The interior showcases a cozy great room with a high vaulted ceiling with a staircase leading to a loft, a kitchen, and comfortable living spaces adorned with wooden finishes and warm lighting. A floor plan reveals a main level with a great room, kitchen, bedroom, and porch, alongside a loft level with a master suite and additional storage, totaling 1400 square feet.














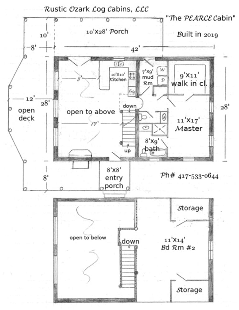
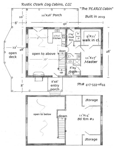
The Pearce Log Home
The Pearce log home: a rustic log cabin featuring an open deck. The interior highlights a cozy great room with high wooden ceilings, a kitchen, a loft, and a bedroom. The floor plan details a main floor with a great room, kitchen, master bedroom with bath, entry porch, and a loft with a second bedroom and storage, with open and functional living space.




























The Schaaf Log Home
The Schaaf log home: a cozy rustic log cabin featuring a spacious porch – the perfect log cabin for a scenic lakeside location. The interior highlights a great room with large windows, a modern kitchen, and a loft area with a balcony. The floor plan details a 720-square-foot main floor with a great room, kitchen, bedroom, and bath, plus a 380-square-foot loft with an additional bedroom and bath, totaling 1100 square feet.




















The Gordon Log Home
The Gordon log home: a beautiful log cabin with a rustic design, featuring a metal roof, large windows, and a spacious interior with wooden walls and floors. The interior includes cozy living areas, a kitchen, and multiple bedrooms. The exterior and interior details, such as the exposed beams and natural wood finishes, highlight the cabin's charm and suitability as a serene retreat.




















Traditional Log Homes specializes in building rustic log homes in Pennsylvania, North Carolina, Virginia, West Virginia, Vermont, New Hampshire, Maine, and surrounding states.
814-413-6462
© 2025 Traditional Log Homes. All rights reserved.
11 North Alley, Rebersburg, PA 16872

